← Zpět na nabídku
Apartmán B, Rezidence Mariánská

Rezidence Mariánská · Jednotka B

Apartmán B

Bytový prostor · DPH 12 %

Největší apartmán v rezidenci pro ty, kdo hledají trvalé bydlení nebo výnosnou investici

3+kk
Dispozice
86,54 m²
Plocha
Přízemí
Podlaží
9 995 000 Kč
Cena s DPH

O apartmánu

Největší apartmán v celé rezidenci — 86 m² v přízemí historické školy. Bytový prostor s DPH 12 % je výhodný jak při koupi, tak při pronájmu. Kompletně zařízený, masivní zdi zajišťují výbornou tepelnou i zvukovou izolaci. Masivní zdi, vysoké stropy, kompletní vybavení. Nastěhování ihned.

Apartmán B se nachází v přízemí historické budovy z roku 1887. Masivní zdi zajišťují výbornou tepelnou i zvukovou izolaci. Plná rekonstrukce zachovala charakter historické stavby s vysokými stropy a velkými okny.

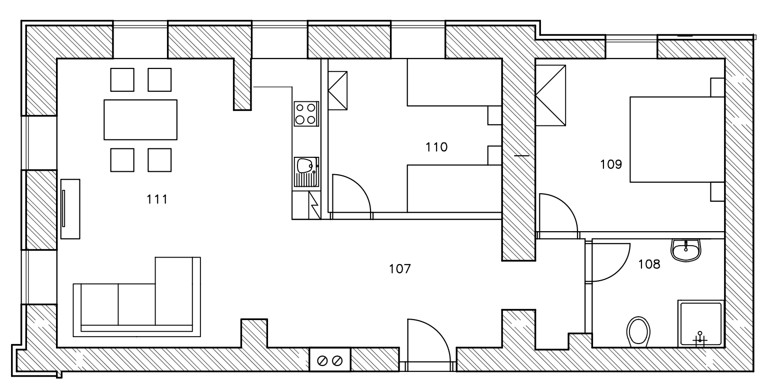
Místnosti

Předsíň107
Koupelna a toaleta108
Ložnice109
Pokoj110
Obývací pokoj s kuchyní111
Celková plocha86,54 m²

86 m², největší apartmán v rezidenci

Prostor pro celou rodinu, homeoffice i hosty. V takových metrech se nikdo nemačká.

Koupelna s italským velkoformátem

Prémiové obklady a dlažba, kvalitní sanitární vybavení

150 metrů od vleku

Lyžáky si obujete doma, na svah pěšky. Tanvaldský Špičák 4 minuty autem.

Bytový prostor — DPH jen 12 %

Nižší sazba oproti nebytovým prostorám. Výhodné při koupi i při výnosovém pronájmu.

Půdorys

Půdorys Apartmánu B

Půdorys · Apartmán B · Přízemí · kliknutím zobrazit větší

Umístění v budově · Apartmán B

Umístění v budově · Přízemí · kliknutím zobrazit větší

Stáhnout půdorys jako PDF

Fotogalerie

Sjednejte si prohlídku

Apartmán je připraven k prohlídce. Rekonstrukce je dokončena, byt je plně zařízen. Cenu sdělíme individuálně.