← Zpět na nabídku
Apartmán D, Rezidence Mariánská

Rezidence Mariánská · Jednotka D

Apartmán D

Bytový prostor · DPH 12 %

Kompaktní horský apartmán pro páry, které chtějí mít vlek doslova za dveřmi

2+kk
Dispozice
56,48 m²
Plocha
1. patro
Podlaží
6 992 000 Kč
Cena s DPH

O apartmánu

Dvoupokojový apartmán s charakterem. Kompaktní, funkční, s pilotním dekorem v obýváku — každý pobyt tu má trochu dobrodružství. Bytový prostor s DPH 12 % dělá z apartmánu D zajímavou investici: menší plocha, snadná obsluha, vysoký výnosový potenciál. 150 metrů od vleku.

Apartmán D se nachází v 1. patře historické budovy z roku 1887. Velká okna poskytují dostatek přirozeného světla a výhled do okolní krajiny. Funkční dispozice s promyšleným využitím každého čtverečního metru.

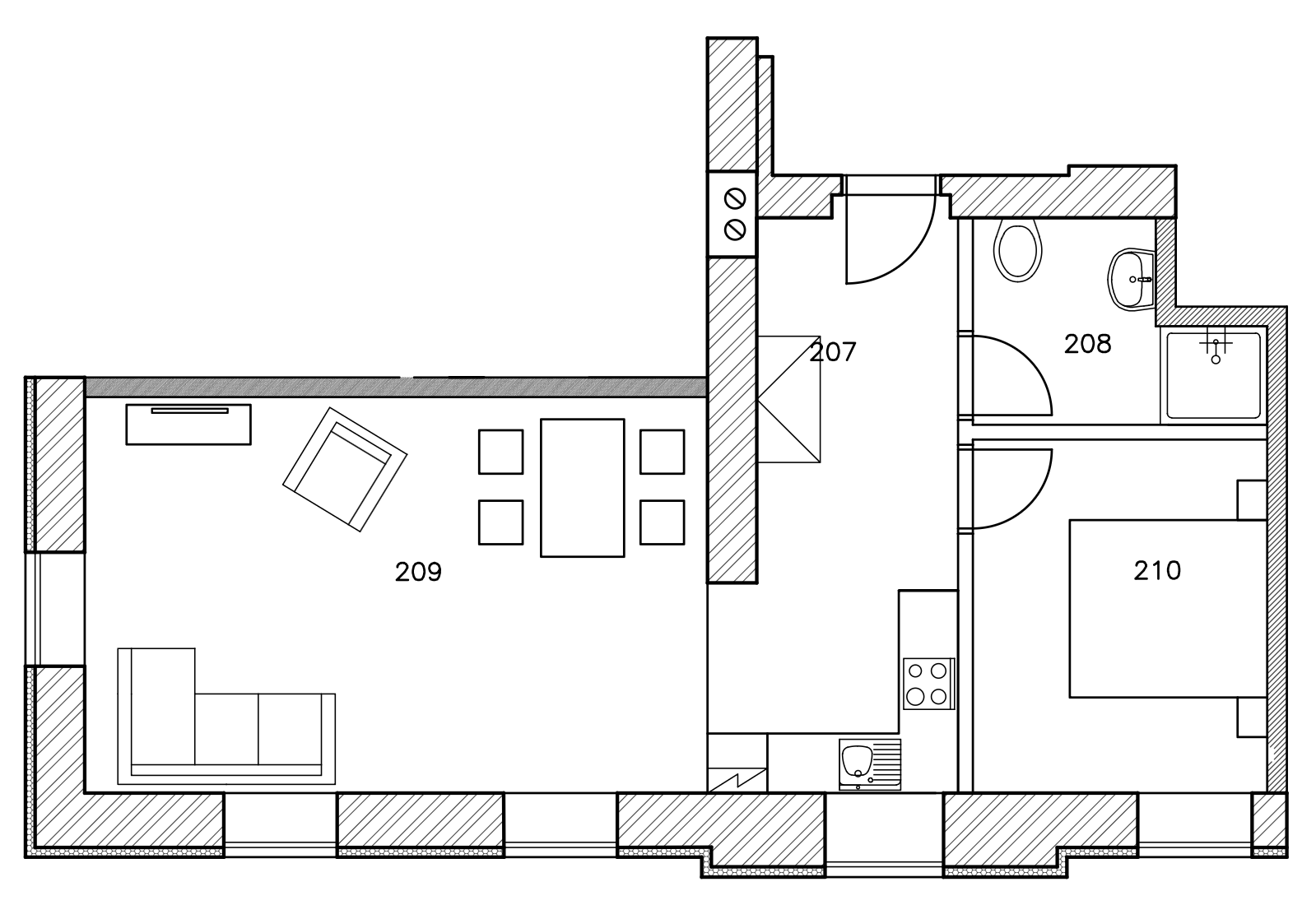
Místnosti

Předsíň207
Koupelna a toaleta208
Obývací pokoj s kuchyní209
Ložnice210
Celková plocha56,48 m²

Bytový prostor — DPH jen 12 %

Nižší daňová sazba oproti nebytovým prostorám. Výhodné při koupi i při výnosovém pronájmu.

Koupelna s italským velkoformátem

Prémiové obklady a dlažba, kvalitní sanitární vybavení

150 metrů od vleku

Lyžáky si obujete doma, na svah pěšky. Tanvaldský Špičák 4 minuty autem.

Investiční potenciál

Kompaktní apartmán s nízkou obsluhou. Méně nocí potřeba k pokrytí nákladů než u větší plochy.

Půdorys

Půdorys Apartmánu D

Půdorys · Apartmán D · 1. patro · kliknutím zobrazit větší

Umístění v budově · Apartmán D

Umístění v budově · 1. patro · kliknutím zobrazit větší

Stáhnout půdorys jako PDF

Fotogalerie

Sjednejte si prohlídku

Apartmán je připraven k prohlídce. Rekonstrukce je dokončena, byt je plně zařízen. Cenu sdělíme individuálně.