← Zpět na nabídku
Apartmán G, Rezidence Mariánská

Rezidence Mariánská Hora · Jednotka G

Apartmán G

Bytový prostor · DPH 12 %

Podkrovní apartmán s jedinečnou atmosférou historických trámů a výhledem na Jizerské hory

3+kk
Dispozice
82,37 m²
Plocha
Podkroví
Podlaží
9 497 000 Kč
Cena s DPH

O apartmánu

Podkroví historické školy z roku 1887 — masivní trámy, šikmé stropy, panoramatické okno s výhledem na hory. Takový prostor v novostavbě nekoupíte. 82 m² s unikátní atmosférou, která se nedá replikovat. Kompletně zařízený, nastěhování ihned. 150 metrů od vleku, Tanvaldský Špičák 4 minuty autem.

Apartmán G se nachází ve 3. nadzemním podlaží, podkroví Rezidence Mariánská. Masivní historické trámy a výhledy do hor vytvářejí atmosféru, která se nedá replikovat. Ideální jako horský apartmán pro vlastní bydlení i jako investice s celoročním provozem.

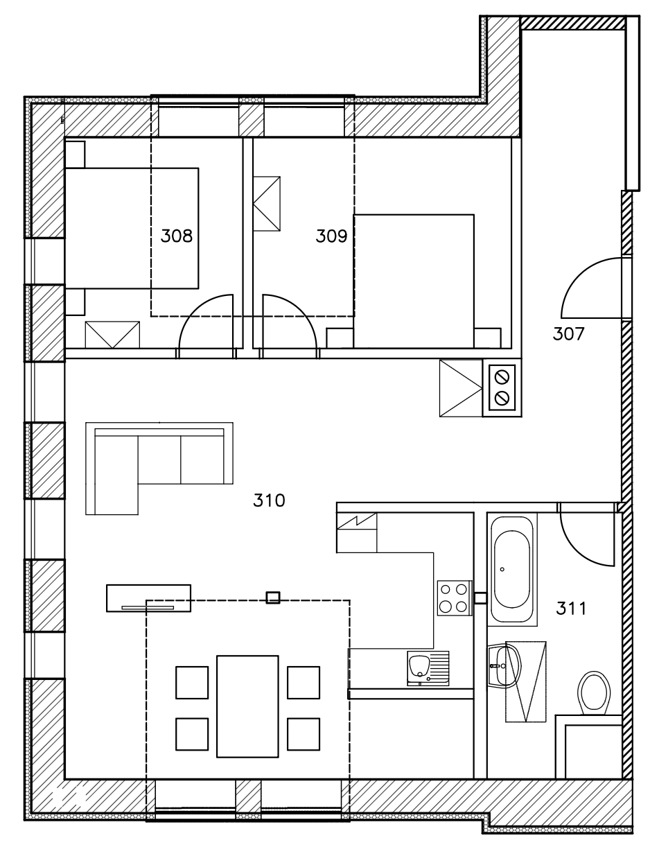
Místnosti

Předsíň307
Pokoj 1308
Pokoj 2309
Obývací pokoj s kuchyní310
Koupelna a toaleta311
Celková plocha82,37 m²

Kompletně zařízeno

Nastěhovat se ihned s taškou. Kuchyně, nábytek, vše připraveno.

Koupelna s italským velkoformátem

Prémiové obklady a dlažba, kvalitní sanitární vybavení

150 metrů od vleku

Lyžáky si obujete doma, na svah pěšky. Tanvaldský Špičák 4 minuty autem.

Panoramatický výhled z podkroví

Historické trámy, šikmé stropy, okno do hor. Atmosféra, kterou standardní apartmán nenabídne.

Půdorys

Půdorys Apartmánu G

Půdorys · Apartmán G · Podkroví · kliknutím zobrazit větší

Umístění v budově · Apartmán G

Umístění v budově · Podkroví · kliknutím zobrazit větší

Stáhnout půdorys jako PDF

Fotogalerie

Zajímá vás tento apartmán?

Kontaktujte nás. Rádi vám sdělíme podrobnosti a domluvíme prohlídku.